HH160 (1 этаж)
Спальня Крыльцо Прихожая Холл С/У Кухня-столовая Терраса Гостиная Гардероб С/У Котельная Терраса

Спальня

15 м²

Крыльцо

3,6 м²

Прихожая

5,8 м²

Холл

2,0 м²

С/У

2,6 м²

Кухня-столовая

16,1 м²

Терраса

5,7 м²

Гостиная

35,6 м²

Гардероб

3,3 м²

С/У

5,9 м²

Котельная

5,9 м²

Терраса

5,7 м²

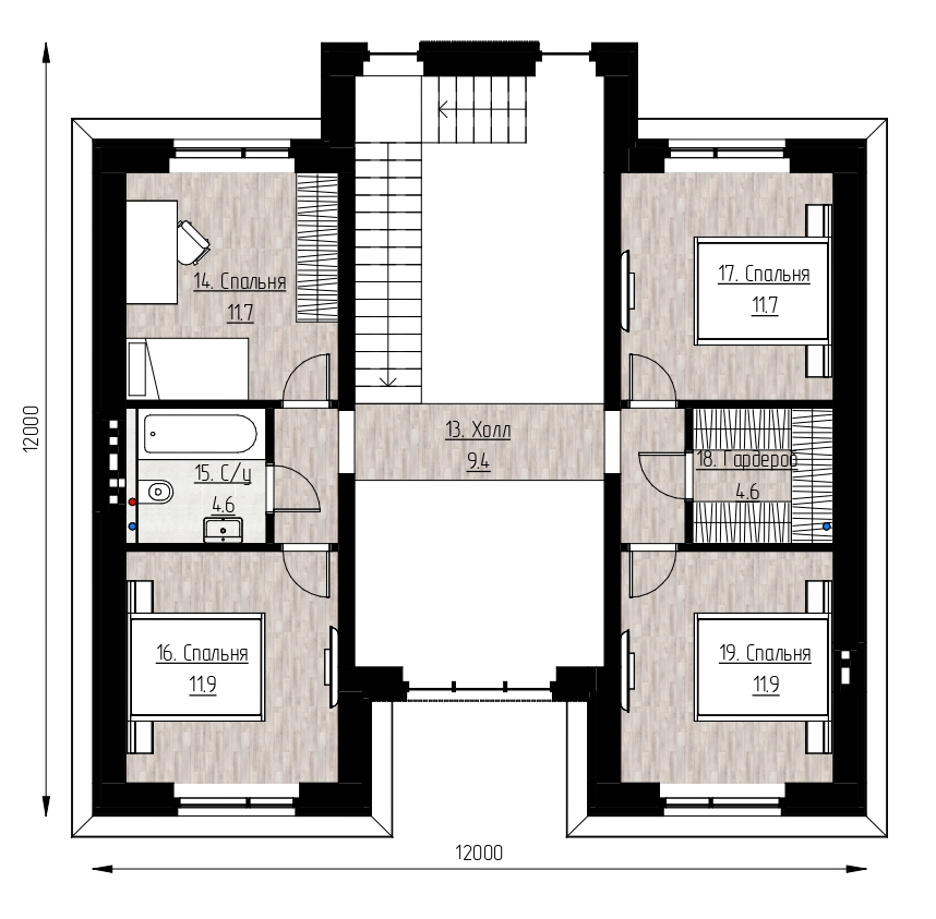
HH160 (2 этаж)
Холл Спальня С/У Спальня Спальня Гардероб Спальня

Холл

9,4 м²

Спальня

11,7 м²

С/У

4,6 м²

Спальня

11,9 м²

Спальня

11,7 м²

Гардероб

4,6 м²

Спальня

11,9 м²

Строительство каменных и железобетонных домов в Москве и МО

Без выходных: 9:00-18:00

+7 (965) 438-78-80
Заказать звонок сейчас

Меню сайта

HH160

Цена: уточняйте у менеджера

Проект HH160 выполнен в современном стиле: двухэтажный дом с плоской
кровлей, просторной гостиной, террасой, рассчитанный на 6-7 человек.

Технология строительства: керамоблок Porotherm 380мм + утеплитель 100мм.

Технико-экономические показатели

Этажность
2
Общая площадь
173,1 кв.м.
Площадь застройки
137,95 кв.м.
Высота здания
8,3 м.

Состав помещений

Крыльцо
3,6 кв.м.
Тамбур
5,8 кв.м.
Котельная
5,9 кв.м.
Гардероб
3,3 кв.м.
Холл
2 кв.м.
Спальня
15 кв.м.
С/У
2,6 кв.м.
С/У
5,9 кв.м.
Гостиная
35,6 кв.м.
Кухня
16,1 кв.м.
Терраса
5,7 кв.м.
Холл
9,4 кв.м.
Гардероб
4,6 кв.м.
Спальня
11,9 кв.м.
Спальня
11,7 кв.м
Спальня
15,8 кв.м.
Спальня
11,9 кв.м.
С/У
4,6 кв.м.
Приглашаем Вас к просмотру
Мы подготовили для Вас онлайн-планировки для оценки каждой части вашего идеального дома
План 1-го этажа
Посмотрите планировку
План 2-го этажа
Посмотрите планировку

Сколько будет СТОИТЬ?

Рассчитайте стоимость строительства дома в онлайн-калькуляторе!
Понравился проект?
Оставьте заявку и Вам перезвоним

Без выходных: 9:00-18:00

+7 (965) 438-78 80
Заполните форму и мы вам перезвоним
  • Узнаете с чего начать;
  • Обговорим бюджет;
  • Расскажем что входит в стоимость;
  • Ответим на вопросы;

Cогласен с условиями политики конфиденциальности данных

У Вас есть свой проект?
Отправьте его нам, мы сделаем расчет в течение часа!

Расчет пройден на 0%
Вопрос 1

Прикрепите файл вашего проекта и мы свяжемся с Вами в ближайшее время

Пропустить вопрос

Назад
Далее
Чтобы продолжить ответьте на вопрос выше
Расчет готов
Где вам удобней получить расчет стоимости?

Cогласен с условиями политики конфиденциальности данных

Засекайте45минут

Обработка данных