H150-2 (1 этаж)
Крыльцо Тамбур Холл Лестничная клетка Котельная С/У Кабинет Кухня-гостиная Терраса

Крыльцо

5,36 м²

Тамбур

4,24 м²

Холл

6,40 м²

Лестничная клетка

5,18 м²

Котельная

5,8 м²

С/У

4,65 м²

Кабинет

13,14 м²

Кухня-гостиная

34,76 м²

Терраса

8,29 м²

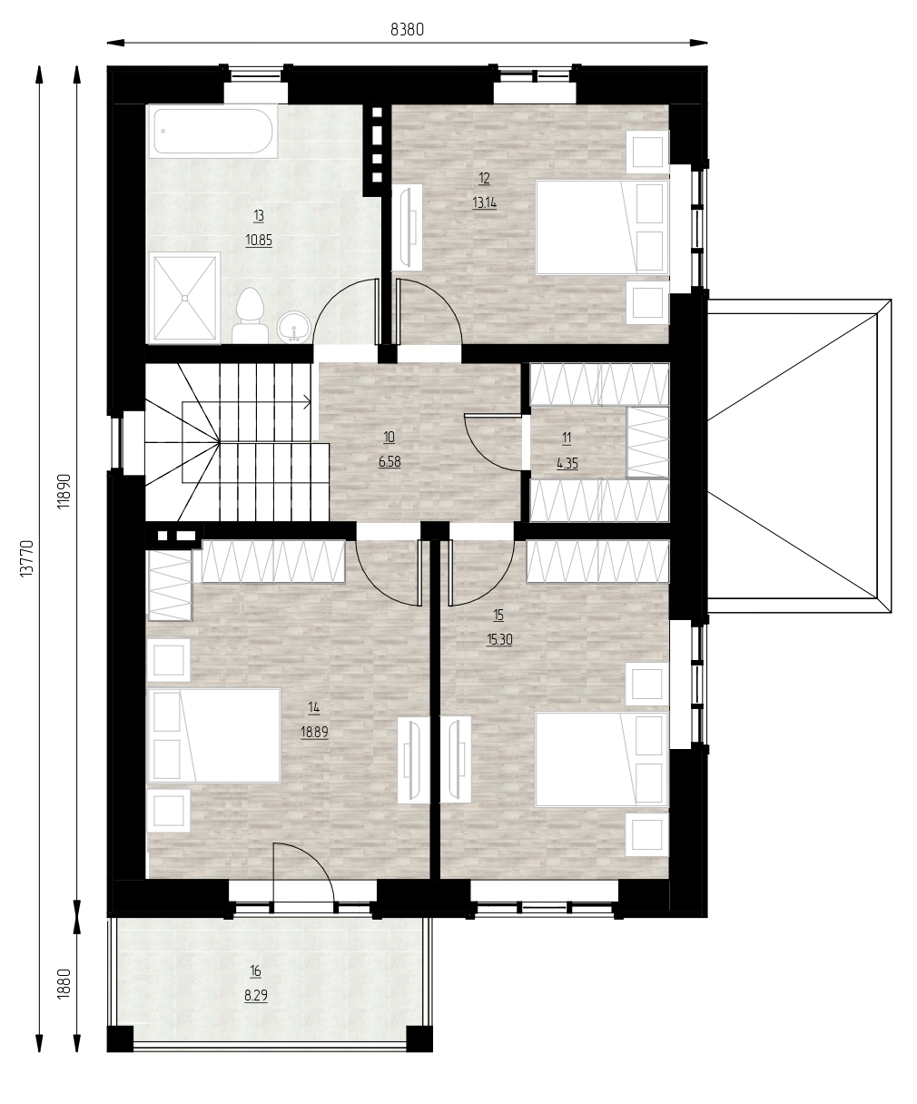
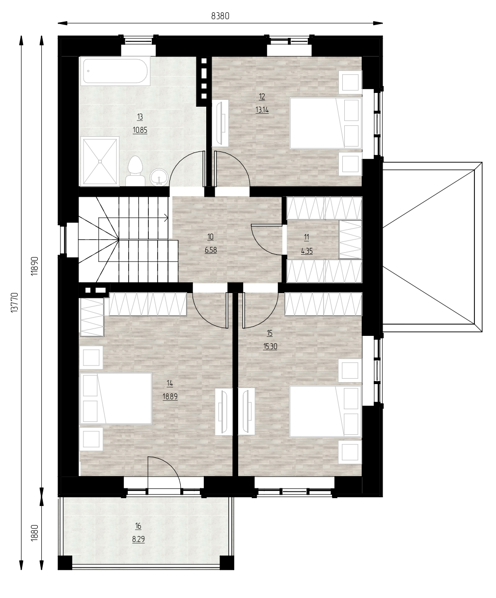
H150-2 (2 этаж)
Спальня Холл Кладовая С/У Спальня Спальня Балкон

Спальня

13,14 м²

Холл

6,40 м²

Кладовая

4,3 м²

С/У

10,85 м²

Спальня

18,89 м²

Спальня

15,30 м²

Балкон

8,29 м²

Строительство каменных и железобетонных домов в Москве и МО

Без выходных: 9:00-18:00

+7 (965) 438-78-80
Заказать звонок сейчас

Меню сайта

H150-2

Цена: уточняйте у менеджера

Проект H150-2 выполнен в классическом стиле: двухэтажный дом с четырехскатной
крышей, просторной гостиной с выходом на террасу, рассчитанный на 5-6 человек.

Технология строительства: керамоблок Porotherm 440мм + облицовочный кирпич

Технико-экономические показатели

Этажность
2
Общая площадь
165,5 кв.м.
Площадь застройки
120,4 кв.м.
Высота здания
8,97 м.

Состав помещений

Крыльцо
5,4 кв.м.
Тамбур
4,2 кв.м.
Котельная
5,8 кв.м.
Холл
6,4 кв.м.
Кабинет
13,1 кв.м.
С/У
4,6 кв.м.
Кухня-гостиная
34,8 кв.м.
Терраса
8,3 кв.м.
Холл
6,6 кв.м.
Кладовая
4,3 кв.м.
Спальня
18,9 кв.м.
Спальня
15,3 кв.м.
Спальня
13,1 кв.м.
С/У
10,9 кв.м.
Балкон
8,3 кв.м.
Приглашаем Вас к просмотру
Мы подготовили для Вас онлайн-планировки для оценки каждой части вашего идеального дома
План 1-го этажа
Посмотрите планировку
План 2-го этажа
Посмотрите планировку

Сколько будет СТОИТЬ?

Рассчитайте стоимость строительства дома в онлайн-калькуляторе!
Понравился проект?
Оставьте заявку и Вам перезвоним

Без выходных: 9:00-18:00

+7 (965) 438-78 80
Заполните форму и мы вам перезвоним
  • Узнаете с чего начать;
  • Обговорим бюджет;
  • Расскажем что входит в стоимость;
  • Ответим на вопросы;

Cогласен с условиями политики конфиденциальности данных

У Вас есть свой проект?
Отправьте его нам, мы сделаем расчет в течение часа!

Расчет пройден на 0%
Вопрос 1

Прикрепите файл вашего проекта и мы свяжемся с Вами в ближайшее время

Пропустить вопрос

Назад
Далее
Чтобы продолжить ответьте на вопрос выше
Расчет готов
Где вам удобней получить расчет стоимости?

Cогласен с условиями политики конфиденциальности данных

Засекайте45минут

Обработка данных